4階は現在募集がありません
1フロア募集区画あり

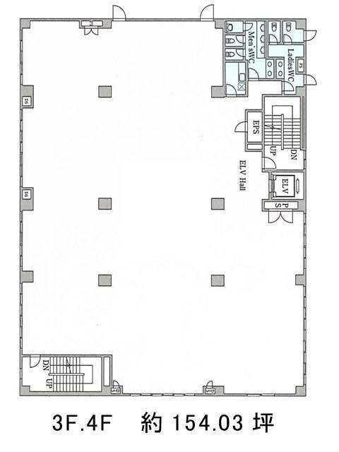
東邦ビル羽田 4階

前の写真 次の写真

物件概要

物件番号

617-00009-41

物件名

東邦ビル羽田

所在地

面積

154.03坪

賃料(共益費含)


入居日

募集終了

保証金

礼金

更新料

償却費

竣工

1989年4月

構造

RC

規模

地上5階/地下1階

トイレ

男女別

空調

個別空調

エレベーター

セキュリティ

駐車場

耐震

新耐震基準

基準階天井高

空室延床面積

57.00坪

最寄駅

情報更新日

2025/09/24

東邦ビル羽田のテナント募集中区画

階数 面積 賃料(共益費含む) 保証金 入居可能日 検討リスト 詳細
2 57.00坪 689,700円/月(12,100円/坪) 285万円
…新着物件

アクセス

東邦ビル羽田の物件情報

東邦ビル羽田(大田区東糀谷)は大鳥居駅(東口)から徒歩7分の賃貸オフィスです。
1989年竣工、産業道路に面する地上5階建て、新耐震基準を満たす鉄筋コンクリート造です。コンクリート地に大きく描かれたロゴが目を引く視認性の高い外観です。基準階は約154坪、貸室の間取りは募集区画によって形状が異なります。当物件にはエレベーターが1基設置されているほか、OAフロア、室外の男女別トイレ、駐車場等を完備しています。周辺は交通量が多いエリアで、徒歩圏内にはコンビニやスーパーが立地していますので、食事の際に活用できそうです。
東邦ビル羽田は大鳥居駅(東口)の他に糀谷駅(中央口)徒歩15分で利用も可能です。

近隣のエリア・駅から探す