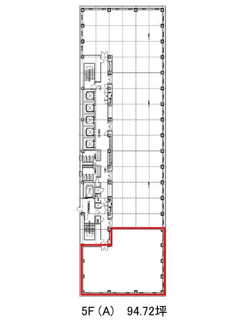
5階 5Aは現在募集がありません
テクノポートカマタセンタービル本館 5階 5A
物件概要
テクノポートカマタセンタービル本館のテナント募集中区画
現在、空室がございません。
テクノポートカマタセンタービル本館のアクセス
テクノポートカマタセンタービル本館の物件情報
テクノポートカマタセンタービル本館(大田区南蒲田)は京急蒲田駅(西口)から徒歩9分の賃貸オフィスです。1990年竣工、地上11階建て。基準階約347坪の大型オフィス物件です。その規模と石張りの外観はかなりの存在感があり、視認性が高いといえます。リニューアル工事を済ませた館内はモノトーンを基調としたデザインで綺麗な状態です。貸室は長方形に近い無柱空間で、日当たり・眺望ともに良好です。主な設備として、個別空調、OAフロア、男女別トイレが備えられ、エレベーターは6基ご利用になれますので待ち時間のストレスが少ないでしょう。また、駐車場が併設されていますのでお車のご利用もしやすい環境です。敷地内にはコンビニが営業中ですので、軽食などのお買い物に便利です。 テクノポートカマタセンタービル本館は京急蒲田駅(西口)の他に糀谷駅(中央口)徒歩11分、雑色駅(西口)徒歩15分で利用も可能です。

