9階は現在募集がありません
3フロア募集区画あり

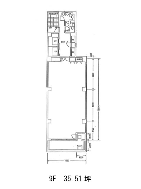
VORT京橋Ⅱ 9階

前の写真 次の写真

物件概要

物件番号

633-00135-90

物件名

VORT京橋Ⅱ

所在地

面積

35.51坪

賃料(共益費含)


入居日

募集終了

保証金

礼金

更新料

償却費

竣工

1989年10月

構造

SRC

規模

地上10階/地下1階

トイレ

男女別

空調

個別空調

エレベーター

セキュリティ

駐車場

耐震

新耐震基準

基準階天井高

空室延床面積

144.39坪

最寄駅

情報更新日

2026/03/26

VORT京橋Ⅱのテナント募集中区画

階数 面積 賃料(共益費含む) 保証金 入居可能日 検討リスト 詳細
地下1 47.25坪 応相談(応相談) 応相談 2026年6月上旬
4 48.38坪 応相談(応相談) 応相談 2026年9月上旬
6 48.76坪 応相談(応相談) 応相談 2026年6月中旬
…新着物件

VORT京橋Ⅱのアクセス

VORT京橋Ⅱの物件情報

VORT京橋Ⅱ(中央区京橋)は京橋駅(7番出口)から徒歩3分の賃貸オフィスです。
中央通りから少し入ったところに立地しているビルです。外観はベージュの石張りで大きなバルコニーが特徴の物件です。室外に男女別のトイレがあります。間取りはシンプルな長方形で床はフリーアクセスのためレイアウトはしやすいでしょう。東京駅まで徒歩圏内とアクセス抜群の好立地です。空港へのアクセスもよいので、国内外の出張が多い業種の方にもおススメの物件です。周辺には飲食店も充実しているので、ランチにディナーに困ることはないと思います。
VORT京橋Ⅱは京橋駅(7番出口)の他に宝町駅(A7番出口)徒歩3分、日本橋駅(B3番出口)徒歩7分で利用も可能です。

近隣のエリア・駅から探す