7階は現在募集がありません
1フロア募集区画あり

キムラヤビル 7階

前の写真 次の写真

物件概要

物件番号

633-00209-50

物件名

キムラヤビル

所在地

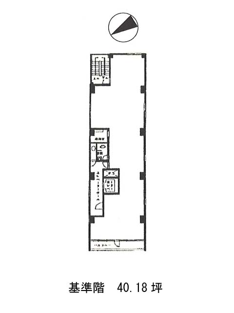
面積

40.18坪

賃料(共益費含)


入居日

募集終了

保証金

礼金

更新料

償却費

竣工

1976年4月

構造

SRC

規模

地上 9階/地下 1階

トイレ

男女別

空調

個別空調

エレベーター

セキュリティ

駐車場

耐震

耐震補強済み

基準階天井高

2400mm

空室延床面積

40.18坪

最寄駅

情報更新日

2026/04/20

キムラヤビルのテナント募集中区画

階数 面積 賃料(共益費含む) 保証金 入居可能日 検討リスト 詳細
4 40.18坪 972,356円/月(24,200円/坪) 775万円
…新着物件

キムラヤビルのアクセス

キムラヤビルの物件情報

キムラヤビル(中央区京橋)は京橋駅(4番出口)から徒歩1分の賃貸オフィスです。
本物件は京橋駅至近という利便性に加え、東京駅・銀座エリアも徒歩圏内という、中央区の中でも交通利便性・周辺集客力ともに優れた立地に位置しています。オフィスワーカーが行き交う通り沿いに面しており、周囲にはカフェ・銀行・郵便局といった日常業務に必要な施設が充実。働く人にとっても、来訪者にとってもストレスの少ない環境が整っています。
ワンフロア約40坪のコンパクトなサイズ感は、士業・デザイン事務所・海外拠点の東京支店など、フレキシブルな運営を求める事業者にとって使い勝手の良い構成です。1フロア1テナント利用で、専有性を保ちながら落ち着いた執務環境を確保できるのもポイント。
設備は必要十分な仕様で、共用部には水回りもまとまって配置されており、来客・スタッフ動線ともにスムーズです。
耐震補強済み。
キムラヤビルは京橋駅(4番出口)の他に宝町駅(A7番出口)徒歩3分、銀座一丁目駅(7番出口)徒歩5分で利用も可能です。

近隣のエリア・駅から探す