1階 1-②は現在募集がありません
東京建物京橋ビル 1階 1-②
物件概要
東京建物京橋ビルのテナント募集中区画
現在、空室がございません。
アクセス
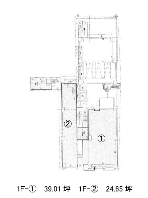
東京建物京橋ビルの物件情報
東京建物京橋ビル(中央区京橋)は京橋駅(3番出口)から徒歩2分の賃貸オフィスです。複数路線の利用が可能なアクセス良好な立地といえるでしょう。外観はブラックとグレーの2色使いでデザイン性が高い建物です。また10階建てなので上層階からの眺望はとても良く、銀座通りの角地に立地しているため、風通しも良好です。基準階坪数は約110坪。ビルの中のトイレは男女別になっており、駐車場もあるため、車を利用したアクセスも可能です。周辺にはコンビニや飲食店が複数あるのでとても利便性が高いです。東京建物京橋ビルは京橋駅(3番出口)の他に宝町駅(A3番出口)徒歩3分、銀座一丁目駅(7番出口)徒歩3分で利用も可能です。

