19階は現在募集がありません
1フロア募集区画あり

京橋エドグラン 19階

前の写真 次の写真

物件概要

物件番号

633-00295-130

物件名

京橋エドグラン

所在地

面積

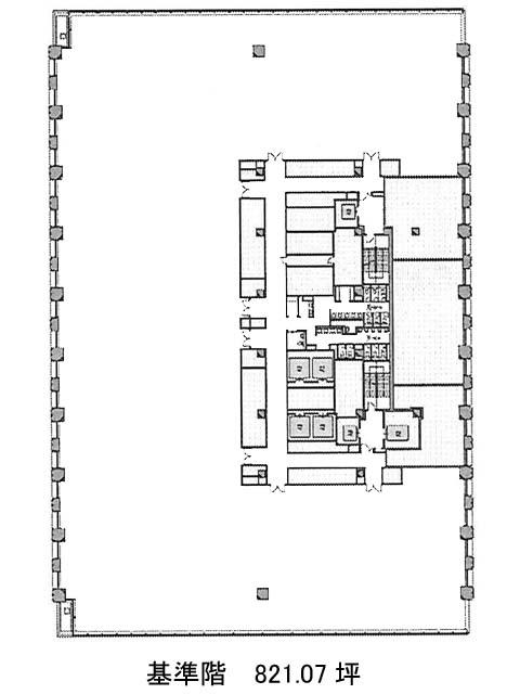
821.07坪

賃料(共益費含)


入居日

募集終了

保証金

礼金

更新料

償却費

竣工

2016年10月

構造

S造

規模

地上32階/地下3階

トイレ

男女別

空調

セントラル

エレベーター

セキュリティ

駐車場

耐震

新耐震基準

基準階天井高

2900~3500mm

空室延床面積

269.45坪

最寄駅

情報更新日

2026/03/03

京橋エドグランのテナント募集中区画

階数 面積 賃料(共益費含む) 保証金 入居可能日 検討リスト 詳細
25 269.45坪 応相談(応相談) 応相談 2026年4月上旬
…新着物件

京橋エドグランのアクセス

京橋エドグランの物件情報

京橋エドグラン(中央区京橋)は京橋駅(7番出口)から徒歩1分の賃貸オフィスです。
複数路線の利用が可能なアクセス良好な立地といえるでしょう。竣工2016年のとても綺麗な物件で、階数は32階もあり、上層階の眺望はとても良好です。外観はガラス張りで32階ということもあり圧倒的存在感です。基準階面積は約800坪を超える広さで、エレベーターは7基設置、その他の設備面では個別空調、男女別トイレ、光ファイバー導入済みと申し分なく、またセキュリティ面も非接触型カードキーを使い、入室管理を最大4段階まで設定できるので、とても厳重です。周辺にはコンビニや飲食店などが複数あり、ビル1Fにも様々な店舗が入っているため利便性がとても高いです。
京橋エドグランは京橋駅(7番出口)の他に宝町駅(A7番出口)徒歩4分、銀座一丁目駅(7番出口)徒歩6分で利用も可能です。

近隣のエリア・駅から探す