京橋エドグランのテナント募集中区画
| 階数 | 面積 | 賃料(共益費含む) | 保証金 | 入居可能日 | 検討リスト | 詳細 |
|---|---|---|---|---|---|---|
| 25 | 269.45坪 | 応相談(応相談) | 応相談 | 2026年4月上旬 |
…新着物件
アクセス
京橋エドグランの物件情報
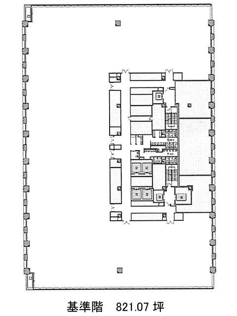
京橋エドグラン(中央区京橋)は京橋駅(7番出口)から徒歩1分の賃貸オフィスです。複数路線の利用が可能なアクセス良好な立地といえるでしょう。竣工2016年のとても綺麗な物件で、階数は32階もあり、上層階の眺望はとても良好です。外観はガラス張りで32階ということもあり圧倒的存在感です。基準階面積は約800坪を超える広さで、エレベーターは7基設置、その他の設備面では個別空調、男女別トイレ、光ファイバー導入済みと申し分なく、またセキュリティ面も非接触型カードキーを使い、入室管理を最大4段階まで設定できるので、とても厳重です。周辺にはコンビニや飲食店などが複数あり、ビル1Fにも様々な店舗が入っているため利便性がとても高いです。京橋エドグランは京橋駅(7番出口)の他に宝町駅(A7番出口)徒歩4分、銀座一丁目駅(7番出口)徒歩6分で利用も可能です。

