2階は現在募集がありません
13フロア募集区画あり

WORK VILLA YAESU 2階

前の写真 次の写真

物件概要

物件番号

633-00319-9

物件名

WORK VILLA YAESU

所在地

面積

250.00坪

賃料(共益費含)


入居日

募集終了

保証金

礼金

更新料

償却費

竣工

2026年5月

構造

S造

規模

地上13階/地下2階

トイレ

男女別

空調

個別空調

エレベーター

セキュリティ

駐車場

耐震

新耐震基準

基準階天井高

空室延床面積

3673.28坪

最寄駅

情報更新日

2025/11/25

WORK VILLA YAESUのテナント募集中区画

階数 面積 賃料(共益費含む) 保証金 入居可能日 検討リスト 詳細
3-4 525.98坪 30,580,161円/月(58,139円/坪) 応相談 2026年5月下旬
2 253.70坪 応相談(応相談) 応相談 2026年5月上旬
3 262.95坪 応相談(応相談) 応相談 2026年5月下旬
4 262.95坪 応相談(応相談) 応相談 2026年5月下旬
5 263.30坪 応相談(応相談) 応相談 2026年5月上旬
6 263.30坪 応相談(応相談) 応相談 2026年5月上旬
7 262.95坪 応相談(応相談) 応相談 2026年5月下旬
8 262.95坪 応相談(応相談) 応相談 2026年5月下旬
9 263.30坪 応相談(応相談) 応相談 2026年5月上旬
10 263.30坪 応相談(応相談) 応相談 2026年5月上旬
11 263.30坪 応相談(応相談) 応相談 2026年5月上旬
12 262.00坪 応相談(応相談) 応相談 2026年5月
12 263.30坪 応相談(応相談) 応相談 2026年5月上旬
…新着物件

アクセス

WORK VILLA YAESUの物件情報

WORK VILLA YAESU(中央区京橋)は宝町駅(A8番出口)から徒歩4分の賃貸オフィスです。
緑に包まれた曲線フォルムが印象的な本物件は、京橋一丁目交差点の角地という好立地に位置しており、遠目からでも視認性が高く、周辺でもひときわ目を引く存在です。全面ガラスと豊かな植栽が調和した外観は、環境への配慮と都市型オフィスの先進性を両立し、エリアの新たなシンボルとして注目されています。
1階には開放的なラウンジスペースが設けられ、来客時の待合やカジュアルな打ち合わせの場としても活用可能。さらに、屋上には自然を感じられるテラス空間が広がり、都心にいながら気分転換できる環境が整っています。
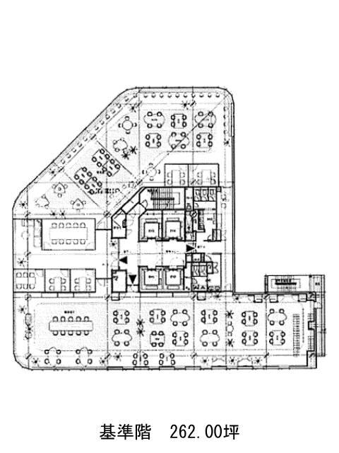
基準階は約262坪。特徴的なのは、執務スペースがエレベーター・水回りのコア部分をぐるりと囲むレイアウトになっている点。ゾーニングしやすく、部署ごとの分離や回遊性を意識したオフィス設計にも対応できます。また、天井高はスケルトン仕様で最大3.7mを確保。開放感があり、クリエイティブ業種や来客の多い企業にも適した空間です。
本物件はデザイン性・機能性・立地の3拍子が揃った希少なオフィスビルとして、働きやすさと企業のブランディングの両立を目指す企業にとって、まさに理想的な選択肢のひとつといえるでしょう。
WORK VILLA YAESUは宝町駅(A8番出口)の他に八丁堀駅(A5a番出口)徒歩6分、日本橋駅(B1番出口)徒歩6分で利用も可能です。

近隣のエリア・駅から探す