6階は現在募集がありません
3フロア募集区画あり
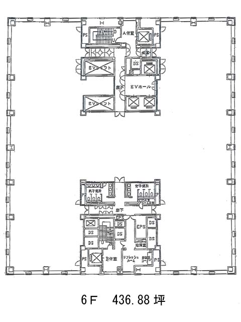
浜離宮パークサイドプレイス 6階
物件概要
物件番号
640-00116-130物件名
浜離宮パークサイドプレイス所在地
- 東京都中央区築地5-6-10
- アクセスマップ
面積
436.88坪賃料(共益費含)
−入居日
募集終了保証金
−礼金
−更新料
−償却費
−竣工
2002年11月構造
S造規模
地上17階/地下2階トイレ
男女別空調
セントラルエレベーター
有セキュリティ
有駐車場
有耐震
新耐震基準基準階天井高
2700mm空室延床面積
819.13坪情報更新日
2025/09/29浜離宮パークサイドプレイスのテナント募集中区画
| 階数 | 面積 | 賃料(共益費含む) | 保証金 | 入居可能日 | 検討リスト | 詳細 |
|---|---|---|---|---|---|---|
| 2 | 170.80坪 | 応相談(応相談) | 応相談 | 即 | ||
| 3 | 436.88坪 | 9,611,360円/月(22,000円/坪) | 応相談 | 相談 | ||
| 5 | 211.45坪 | 4,651,900円/月(22,000円/坪) | 5,074万円 | 即 |
…新着物件
アクセス
浜離宮パークサイドプレイスの物件情報
浜離宮パークサイドプレイス(中央区築地)は築地市場駅(A1番出口)から徒歩5分の賃貸オフィスです。2002年竣工、鉄骨鉄筋コンクリート造の地上17階、地下2階建の建物です。基準階面積は約400坪強あり、特に上層階からの眺望は素晴らしいです。設備面は、室外男女別トイレ、光ファイバー、OAフロア、駐車場も完備しておりハイスペックな大型オフィスビルです。周辺には、多数の飲食店が点在しており、郵便局も徒歩圏内にございます。また当ビル内にもカフェやコンビニが入っているため、打ち合わせやランチにも利用できます。浜離宮パークサイドプレイスは築地市場駅(A1番出口)の他に汐留駅(6番出口)徒歩8分、新橋駅(1D番出口)徒歩10分で利用も可能です。

