日本橋加藤ビルディングのテナント募集中区画
| 階数 | 面積 | 賃料(共益費含む) | 保証金 | 入居可能日 | 検討リスト | 詳細 |
|---|---|---|---|---|---|---|
| 3 | 166.65坪 | 応相談(応相談) | 応相談 | 2026年9月中旬 |
…新着物件
日本橋加藤ビルディングのアクセス
日本橋加藤ビルディングの物件情報
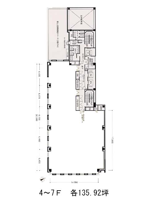
日本橋加藤ビルディング(中央区日本橋)は日本橋駅(B5番出口)から徒歩1分の賃貸オフィスです。複数路線の利用が可能なアクセス良好な立地といえるでしょう。1994年竣工。新耐震基準を満たした地上10階建てのオフィスビルで、上層階からの眺望はとても良好です。基準階は約135坪で、室内は綺麗な長方形の形をしており、OAフロア完備のため、レイアウトはしやすいでしょう。設備面ではトイレは男女別となっており、駐車場もあるため、社用車での利用も可能です。また周辺には、コンビニや飲食店が多数あるので、とても利便性が高いです。日本橋加藤ビルディングは日本橋駅(B5番出口)の他に三越前駅(B6番出口)徒歩5分、大手町駅(B10番出口)徒歩5分で利用も可能です。

