6階は現在募集がありません
1フロア募集区画あり

日本橋加藤ビルディング 6階

前の写真 次の写真

物件概要

物件番号

643-00185-80

物件名

日本橋加藤ビルディング

所在地

面積

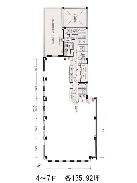
135.92坪

賃料(共益費含)


入居日

募集終了

保証金

礼金

更新料

償却費

竣工

1994年12月

構造

SRC

規模

地上10階/地下1階

トイレ

男女別

空調

個別空調

エレベーター

セキュリティ

駐車場

耐震

新耐震基準

基準階天井高

2600mm

空室延床面積

166.65坪

最寄駅

情報更新日

2026/03/11

日本橋加藤ビルディングのテナント募集中区画

階数 面積 賃料(共益費含む) 保証金 入居可能日 検討リスト 詳細
3 166.65坪 応相談(応相談) 応相談 2026年9月中旬
…新着物件

日本橋加藤ビルディングのアクセス

日本橋加藤ビルディングの物件情報

日本橋加藤ビルディング(中央区日本橋)は日本橋駅(B5番出口)から徒歩1分の賃貸オフィスです。
複数路線の利用が可能なアクセス良好な立地といえるでしょう。1994年竣工。新耐震基準を満たした地上10階建てのオフィスビルで、上層階からの眺望はとても良好です。基準階は約135坪で、室内は綺麗な長方形の形をしており、OAフロア完備のため、レイアウトはしやすいでしょう。設備面ではトイレは男女別となっており、駐車場もあるため、社用車での利用も可能です。また周辺には、コンビニや飲食店が多数あるので、とても利便性が高いです。
日本橋加藤ビルディングは日本橋駅(B5番出口)の他に三越前駅(B6番出口)徒歩5分、大手町駅(B10番出口)徒歩5分で利用も可能です。

近隣のエリア・駅から探す