6階は現在募集がありません
1フロア募集区画あり

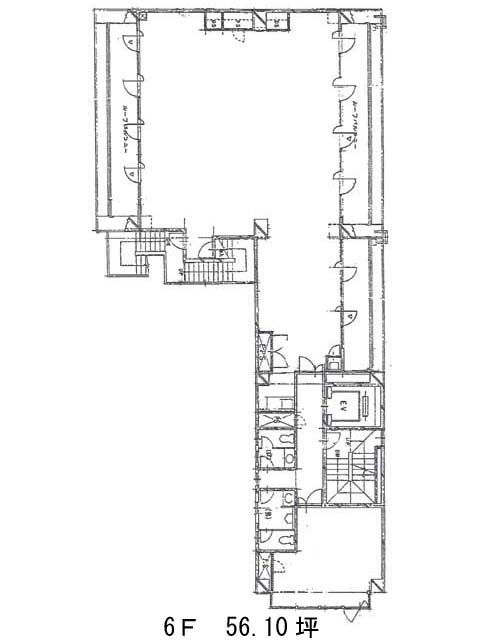
テラサキ第2ビル 6階

前の写真 次の写真

物件概要

物件番号

648-00112-50

物件名

テラサキ第2ビル

所在地

面積

56.10坪

賃料(共益費含)


入居日

募集終了

保証金

礼金

更新料

償却費

竣工

1992年4月

構造

RC

規模

地上7階/地下1階

トイレ

男女別

空調

個別空調

エレベーター

セキュリティ

駐車場

耐震

新耐震基準

基準階天井高

2400mm

空室延床面積

82.31坪

最寄駅

情報更新日

2026/01/26

テラサキ第2ビルのテナント募集中区画

階数 面積 賃料(共益費含む) 保証金 入居可能日 検討リスト 詳細
4 82.31坪 1,901,361円/月(23,100円/坪) 1,728万円 2026年3月上旬
…新着物件

アクセス

テラサキ第2ビルの物件情報

テラサキ第2ビル(中央区日本橋室町)は三越前駅(A4番出口)から徒歩2分の賃貸オフィスです。
白いタイル張りをしたすっきりとした外観のビルです。エントランスは植栽のアプローチが目を癒してくれるでしょう。24時間使用可能でEV1基・個別空調・男女別トイレ・安心の機械警備があります。全面改装を経て、内部は白を基調とした明るい共用部となっております。間取りは二面採光で明るい室内が期待できるでしょう。ビルの形状をいかし、共用部と執務スペースが使いやすく分けられています。周辺は和食・そば・居酒屋等の味わいある個人店が軒を連ね、江戸情緒あふれる街並みになっています。
テラサキ第2ビルは三越前駅(A4番出口)の他に新日本橋駅(1番出口)徒歩6分、日本橋駅(C1番出口)徒歩7分で利用も可能です。

近隣のエリア・駅から探す