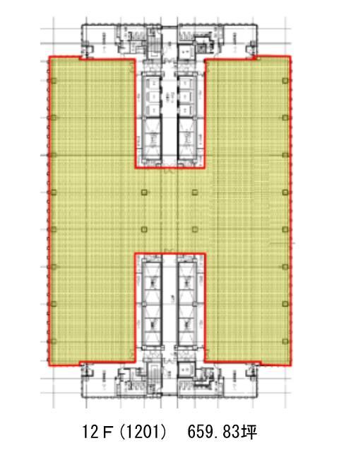
12階 1201は現在募集がありません
日本橋三井タワー 12階 1201
物件概要
日本橋三井タワーのテナント募集中区画
現在、空室がございません。
アクセス
日本橋三井タワーの物件情報
日本橋三井タワー(中央区日本橋室町)は三越前駅(A8番出口)から徒歩1分の賃貸オフィスです。中央通り沿いに建ち、低層階は昔の面影を残したデザイン。高層階は遠方からも目印になる何層かにわかれたミラーガラスが周囲のランドマーク的存在です。高層階はホテル、低層階は飲食店等の店舗が入居し地下鉄直結となります。美術館、アート作品の飾られたホール等来客時に空間全体でおもてなしできるでしょう。オフィスフロアは5~28階。18基のEV、駐車場を備え、OAフロアとなります。二面採光の大きくとられたガラス窓から、再開発によりかわりゆく日本橋の街並みを眺められるでしょう。日本橋三井タワーは三越前駅(A8番出口)の他に新日本橋駅(1番出口)徒歩3分、神田駅(南口)徒歩8分で利用も可能です。

