4階は現在募集がありません
1フロア募集区画あり

DKサンビル 4階

前の写真 次の写真

物件概要

物件番号

648-00030-40

物件名

DKサンビル

所在地

面積

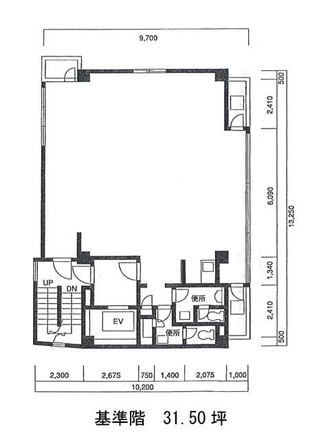
31.50坪

賃料(共益費含)


入居日

募集終了

保証金

礼金

更新料

償却費

竣工

1983年5月

構造

SRC

規模

地上8階/地下1階

トイレ

男女別

空調

個別空調

エレベーター

セキュリティ

駐車場

耐震

新耐震基準

基準階天井高

空室延床面積

31.50坪

最寄駅

情報更新日

2026/05/14

DKサンビルのテナント募集中区画

階数 面積 賃料(共益費含む) 保証金 入居可能日 検討リスト 詳細
3 31.50坪 658,350円/月(20,900円/坪) 488万円 2026年9月中旬
…新着物件

DKサンビルのアクセス

DKサンビルの物件情報

DKサンビル(中央区日本橋室町)は新日本橋駅(2番出口)から徒歩3分の賃貸オフィスです。
神田駅からもほど近いオフィス街に佇む地上8階建てのオフィスビルです。
茶色いタイル張りの外観は、明るいながらも落ち着いた印象を受けます。隣や1階には分かりやすい外観の飲食店が経営しているため、物件を示す際の目印になりそうです。
基準階は30坪強。フリーアクセスフロアな上、無柱空間のため自由度の高いレイアウトが可能です。
周辺には飲食店が多数点在しており、徒歩1分圏内にコンビニやカフェがある便利な立地となっております。
DKサンビルは新日本橋駅(2番出口)の他に神田駅(南口)徒歩3分、三越前駅(A10番出口)徒歩5分で利用も可能です。

近隣のエリア・駅から探す