DKサンビルのテナント募集中区画
| 階数 | 面積 | 賃料(共益費含む) | 保証金 | 入居可能日 | 検討リスト | 詳細 |
|---|---|---|---|---|---|---|
| 2 | 31.50坪 | 658,350円/月(20,900円/坪) | 488万円 | 2026年3月下旬 |
…新着物件
アクセス
DKサンビルの物件情報
DKサンビル(中央区日本橋室町)は新日本橋駅(2番出口)から徒歩3分の賃貸オフィスです。神田駅からもほど近いオフィス街に佇む地上8階建てのオフィスビルです。
茶色いタイル張りの外観は、明るいながらも落ち着いた印象を受けます。隣や1階には分かりやすい外観の飲食店が経営しているため、物件を示す際の目印になりそうです。
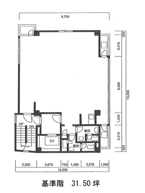
基準階は30坪強。フリーアクセスフロアな上、無柱空間のため自由度の高いレイアウトが可能です。
周辺には飲食店が多数点在しており、徒歩1分圏内にコンビニやカフェがある便利な立地となっております。DKサンビルは新日本橋駅(2番出口)の他に神田駅(南口)徒歩3分、三越前駅(A10番出口)徒歩5分で利用も可能です。

