5階は現在募集がありません
日本橋協栄ビル 5階
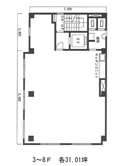
物件概要
日本橋協栄ビルのテナント募集中区画
現在、空室がございません。
アクセス
日本橋協栄ビルの物件情報
日本橋協栄ビル(中央区日本橋小舟町)は人形町駅(A6番出口)から徒歩3分の賃貸オフィスです。日本橋協栄ビルは人形町駅(A6番出口)の他に水天宮前駅(8番出口)徒歩7分、三越前駅(B6番出口)徒歩7分で利用も可能です。

