3階は現在募集がありません
1フロア募集区画あり

森友第1ビル 3階

前の写真 次の写真

物件概要

物件番号

651-00041-10

物件名

森友第1ビル

所在地

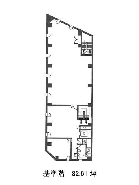
面積

82.61坪

賃料(共益費含)


入居日

募集終了

保証金

礼金

更新料

償却費

竣工

1987年9月

構造

SRC

規模

地上6階

トイレ

男女別

空調

個別空調

エレベーター

セキュリティ

駐車場

耐震

新耐震基準

基準階天井高

空室延床面積

52.90坪

最寄駅

情報更新日

2026/03/12

森友第1ビルのテナント募集中区画

階数 面積 賃料(共益費含む) 保証金 入居可能日 検討リスト 詳細
5 52.90坪 872,850円/月(16,500円/坪) 476万円
…新着物件

森友第1ビルのアクセス

森友第1ビルの物件情報

森友第1ビル(中央区日本橋小網町)は人形町駅(A6番出口)から徒歩3分の賃貸オフィスです。
日本橋小学校向かいの角地に建つ、6階建てのビルです。茶色のレンガ貼りの、落ち着いた雰囲気の外観です。室内は長方形の無柱空間となっていて、レイアウトしやすい間取りです。給湯室と男女別トイレは共用部に設置されています。光ファイバーが引込済みです。日本橋小網町は日本橋川に面した土地柄、水上交通の面で重要な場所として発展した町です。
森友第1ビルは人形町駅(A6番出口)の他に水天宮前駅(8番出口)徒歩5分、茅場町駅(9番出口)徒歩8分で利用も可能です。

近隣のエリア・駅から探す