森友第1ビルのテナント募集中区画
| 階数 | 面積 | 賃料(共益費含む) | 保証金 | 入居可能日 | 検討リスト | 詳細 |
|---|---|---|---|---|---|---|
| 5 | 52.90坪 | 872,850円/月(16,500円/坪) | 476万円 | 即 |
…新着物件
森友第1ビルのアクセス
森友第1ビルの物件情報
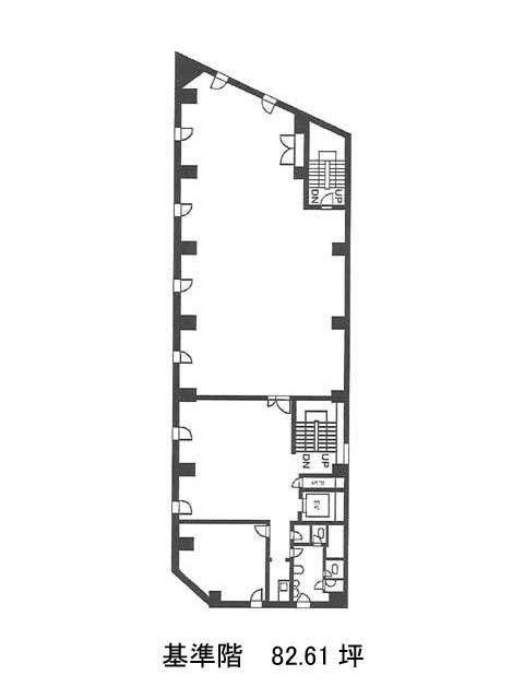
森友第1ビル(中央区日本橋小網町)は人形町駅(A6番出口)から徒歩3分の賃貸オフィスです。日本橋小学校向かいの角地に建つ、6階建てのビルです。茶色のレンガ貼りの、落ち着いた雰囲気の外観です。室内は長方形の無柱空間となっていて、レイアウトしやすい間取りです。給湯室と男女別トイレは共用部に設置されています。光ファイバーが引込済みです。日本橋小網町は日本橋川に面した土地柄、水上交通の面で重要な場所として発展した町です。森友第1ビルは人形町駅(A6番出口)の他に水天宮前駅(8番出口)徒歩5分、茅場町駅(9番出口)徒歩8分で利用も可能です。

