人形町ファーストビル 地下2階
物件概要
物件番号
652-00200-20物件名
人形町ファーストビル所在地
- 東京都中央区日本橋人形町3-3-6
- アクセスマップ
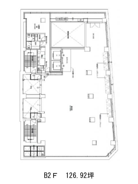
面積
126.92坪賃料(共益費含)
月額1,396,120円(11,000円/坪)
入居日
相談保証金
12,692,000円礼金
なし更新料
なし償却費
なし竣工
1989年1月構造
RC規模
地上7階/地下3階トイレ
男女別空調
個別空調エレベーター
有セキュリティ
駐車場
有耐震
新耐震基準基準階天井高
2600mm空室延床面積
126.92坪情報更新日
2025/11/26人形町ファーストビルのテナント募集中区画
| 階数 | 面積 | 賃料(共益費含む) | 保証金 | 入居可能日 | 検討リスト | 詳細 |
|---|---|---|---|---|---|---|
| 地下2 | 126.92坪 | 1,396,120円/月(11,000円/坪) | 1,269万円 | 相談 |
…新着物件
アクセス
人形町ファーストビルの物件情報
人形町ファーストビル(中央区日本橋人形町)は人形町駅(A6番出口)から徒歩3分の賃貸オフィスです。白い外壁に縦長の窓が並び、モダンな外観をしたビルです。地上7階地下3階で1989年竣工で、新耐震基準に適合しています。ドライエリアがあり、地下でも採光を取り入れられる造りになっています。三方角地に建ち視認性が高いでしょう。設備としてEV2基・駐車場・非常階段2箇所・個別空調があります。周辺は小型のオフィスビル・住宅・店舗等様々な建物が混在するエリアです。飲食店が充実しており、ランチにご利用頂けるでしょう。オフィスは24時間仕様可能です。人形町ファーストビルは人形町駅(A6番出口)の他に水天宮前駅(8番出口)徒歩7分、小伝馬町駅(3番出口)徒歩8分で利用も可能です。

