アライズ第2ビルのテナント募集中区画
| 階数 | 面積 | 賃料(共益費含む) | 保証金 | 入居可能日 | 検討リスト | 詳細 |
|---|---|---|---|---|---|---|
| 3 | 52.80坪 | 813,120円/月(15,400円/坪) | 406万円 | 2025年12月上旬 |
…新着物件
アクセス
アライズ第2ビルの物件情報
アライズ第2ビル(中央区日本橋箱崎町)は水天宮前駅(2番出口)から徒歩5分の賃貸オフィスです。角地に佇む、すっきりとした印象のオフィスビルです。ベージュタイル張りの外観が周辺環境にやさしく馴染み、派手すぎず落ち着いた雰囲気を醸し出しています。
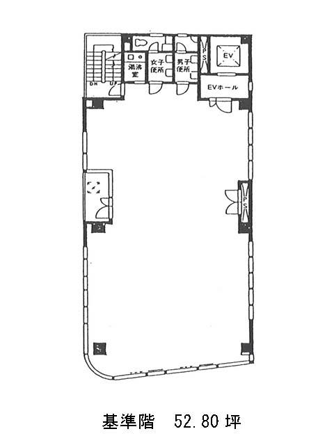
基準階は約53坪、長方形に近いシンプルな間取りで、什器レイアウトも自由度高く設計可能。1フロア1テナント仕様で、男女別トイレ・給湯室など水回りも室内にまとまっており、占有性と使いやすさのバランスが取れた空間です。セキュリティは機械警備を導入済みで、安心して執務に集中できる環境も確保。最寄り駅は2駅がそれぞれ徒歩5分ほどと、アクセスも良好です。派手さというよりも“ちゃんと働ける場所”を重視したい企業におすすめの一棟です。アライズ第2ビルは水天宮前駅(2番出口)の他に茅場町駅(4B番出口)徒歩5分、八丁堀駅(A4番出口)徒歩10分で利用も可能です。

