7階は現在募集がありません
1フロア募集区画あり

アライズ第2ビル 7階

前の写真 次の写真

物件概要

物件番号

656-00023-60

物件名

アライズ第2ビル

所在地

面積

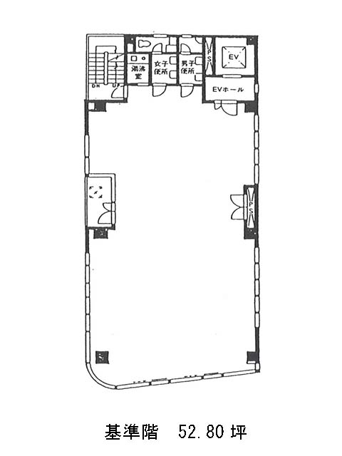
52.80坪

賃料(共益費含)


入居日

募集終了

保証金

礼金

更新料

償却費

竣工

1988年4月

構造

S造

規模

地上7階

トイレ

男女別

空調

エレベーター

セキュリティ

駐車場

耐震

新耐震基準

基準階天井高

空室延床面積

52.80坪

最寄駅

情報更新日

2025/11/12

アライズ第2ビルのテナント募集中区画

階数 面積 賃料(共益費含む) 保証金 入居可能日 検討リスト 詳細
3 52.80坪 813,120円/月(15,400円/坪) 406万円 2025年12月上旬
…新着物件

アクセス

アライズ第2ビルの物件情報

アライズ第2ビル(中央区日本橋箱崎町)は水天宮前駅(2番出口)から徒歩5分の賃貸オフィスです。
角地に佇む、すっきりとした印象のオフィスビルです。ベージュタイル張りの外観が周辺環境にやさしく馴染み、派手すぎず落ち着いた雰囲気を醸し出しています。
基準階は約53坪、長方形に近いシンプルな間取りで、什器レイアウトも自由度高く設計可能。1フロア1テナント仕様で、男女別トイレ・給湯室など水回りも室内にまとまっており、占有性と使いやすさのバランスが取れた空間です。セキュリティは機械警備を導入済みで、安心して執務に集中できる環境も確保。最寄り駅は2駅がそれぞれ徒歩5分ほどと、アクセスも良好です。派手さというよりも“ちゃんと働ける場所”を重視したい企業におすすめの一棟です。
アライズ第2ビルは水天宮前駅(2番出口)の他に茅場町駅(4B番出口)徒歩5分、八丁堀駅(A4番出口)徒歩10分で利用も可能です。

近隣のエリア・駅から探す