東益ビル 3階
物件概要
物件番号
656-00028-20物件名
東益ビル所在地
- 東京都中央区日本橋箱崎町16-1
- アクセスマップ
面積
73.66坪賃料(共益費含)
月額1,093,851円(14,850円/坪)
入居日
相談保証金
4,640,580円礼金
1ケ月更新料
なし償却費
1ケ月竣工
1994年3月構造
SRC規模
地上7階/地下1階トイレ
男女別空調
個別空調エレベーター
有セキュリティ
有駐車場
有耐震
新耐震基準基準階天井高
2500mm空室延床面積
147.32坪情報更新日
2026/03/11東益ビルのテナント募集中区画
| 階数 | 面積 | 賃料(共益費含む) | 保証金 | 入居可能日 | 検討リスト | 詳細 |
|---|---|---|---|---|---|---|
| 3 | 73.66坪 | 1,093,851円/月(14,850円/坪) | 464万円 | 相談 | ||
| 5 | 73.66坪 | 1,100,000円/月(14,934円/坪) | 480万円 | 2026年4月上旬 |
…新着物件
東益ビルのアクセス
東益ビルの物件情報
東益ビル(中央区日本橋箱崎町)は水天宮前駅(2番出口)から徒歩4分の賃貸オフィスです。グレートーンの外観に、石材やタイルがバランスよく組み合わされた本物件。街並みにしっくり溶け込みながらも、どこか上品な印象を感じさせてくれるデザインです。エントランス周りは植栽も整えられており、訪れる人への第一印象もきちんと演出されています。
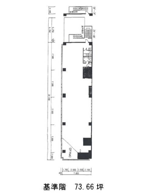
基準階は約74坪、縦長の長方形の区画で、柱が外周部に集約されているためレイアウトの自由度もまずまず。すでにOAフロア仕様となっており、入居後の工事負担も軽減できそうです。
機械警備と駐車場が整備されており、セキュリティと利便性の両立も◎。また、徒歩圏にはT-CAT(東京シティエアターミナル)が立地しているため、国内外への出張が多い企業や、遠方の来客がある企業にとってはとても心強い環境です。東益ビルは水天宮前駅(2番出口)の他に茅場町駅(4B番出口)徒歩6分、人形町駅(A2番出口)徒歩10分で利用も可能です。

