2階は現在募集がありません
1フロア募集区画あり

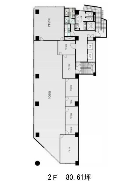
箱崎リージェントビル 2階

前の写真 次の写真

物件概要

物件番号

656-00039-10

物件名

箱崎リージェントビル

所在地

面積

89.27坪

賃料(共益費含)


入居日

募集終了

保証金

礼金

更新料

償却費

竣工

1993年8月

構造

SRC

規模

地上8階

トイレ

男女別

空調

個別空調

エレベーター

セキュリティ

駐車場

耐震

新耐震基準

基準階天井高

2500mm

空室延床面積

96.58坪

最寄駅

情報更新日

2026/04/06

箱崎リージェントビルのテナント募集中区画

階数 面積 賃料(共益費含む) 保証金 入居可能日 検討リスト 詳細
5 96.58坪 応相談(応相談) 応相談 2026年5月上旬
…新着物件

箱崎リージェントビルのアクセス

箱崎リージェントビルの物件情報

箱崎リージェントビル(中央区日本橋箱崎町)は水天宮前駅(2番出口)から徒歩3分の賃貸オフィスです。
箱崎リージェントビルは水天宮前駅(2番出口)の他に茅場町駅(4B番出口)徒歩7分、人形町駅(A2番出口)徒歩9分で利用も可能です。

近隣のエリア・駅から探す