箱崎リージェントビル 5階
物件概要
物件番号
656-00039-40物件名
箱崎リージェントビル所在地
- 東京都中央区日本橋箱崎町17-1
- アクセスマップ
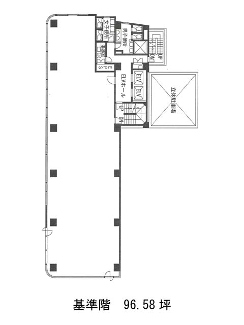
面積
96.58坪賃料(共益費含)
:応相談応相談
入居日
2026年5月上旬保証金
応相談礼金
なし更新料
なし償却費
なし竣工
1993年8月構造
SRC規模
地上8階トイレ
男女別空調
個別空調エレベーター
有セキュリティ
有駐車場
有耐震
新耐震基準基準階天井高
2500mm空室延床面積
96.58坪情報更新日
2026/02/10箱崎リージェントビルのテナント募集中区画
| 階数 | 面積 | 賃料(共益費含む) | 保証金 | 入居可能日 | 検討リスト | 詳細 |
|---|---|---|---|---|---|---|
| 5 | 96.58坪 | 応相談(応相談) | 応相談 | 2026年5月上旬 |
…新着物件
箱崎リージェントビルのアクセス
箱崎リージェントビルの物件情報
箱崎リージェントビル(中央区日本橋箱崎町)は水天宮前駅(2番出口)から徒歩3分の賃貸オフィスです。箱崎リージェントビルは水天宮前駅(2番出口)の他に茅場町駅(4B番出口)徒歩7分、人形町駅(A2番出口)徒歩9分で利用も可能です。

