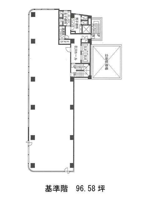
箱崎リージェントビルのテナント募集中区画
| 階数 | 面積 | 賃料(共益費含む) | 保証金 | 入居可能日 | 検討リスト | 詳細 |
|---|---|---|---|---|---|---|
| 5 | 96.58坪 | 応相談(応相談) | 応相談 | 2026年5月上旬 |
…新着物件
アクセス
箱崎リージェントビルの物件情報
箱崎リージェントビル(中央区日本橋箱崎町)は水天宮前駅(2番出口)から徒歩3分の賃貸オフィスです。箱崎リージェントビルは水天宮前駅(2番出口)の他に茅場町駅(4B番出口)徒歩7分、人形町駅(A2番出口)徒歩9分で利用も可能です。

