6階は現在募集がありません
ストークビルヂング本石 6階
物件概要
ストークビルヂング本石のテナント募集中区画
現在、空室がございません。
アクセス
ストークビルヂング本石の物件情報
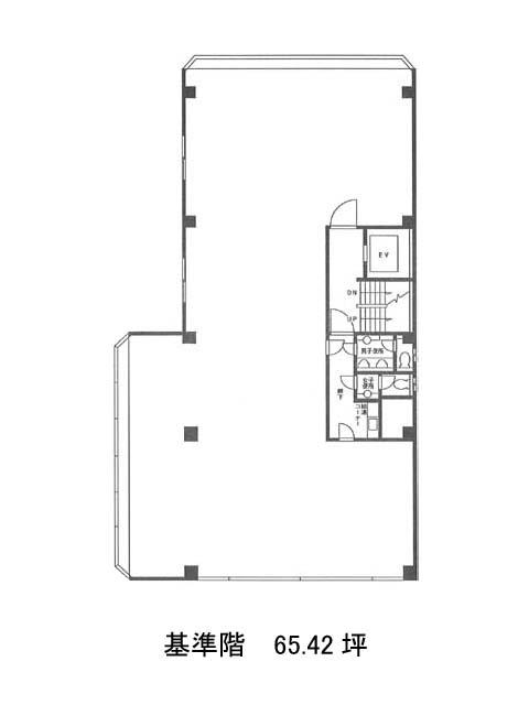
ストークビルヂング本石(中央区日本橋本石町)は新日本橋駅(2番出口)から徒歩3分の賃貸オフィスです。江戸通りに面し、外堀通りとの交差点近くに建つ、10階建てのビルです。基準階は65.42坪の長方形に近いL字型の間取りです。床がフリーアクセスになっているので、すっきりとした配線が可能です。給湯設備と男女別トイレは共用部に設置されています。向かいに区立常盤小学校があり、南へ行くとすぐに日本銀行がある、落ち着いた環境です。ストークビルヂング本石は新日本橋駅(2番出口)の他に三越前駅(A8番出口)徒歩4分、神田駅(南口)徒歩6分で利用も可能です。

