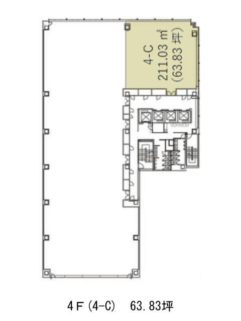
4階 4Cは現在募集がありません
日本橋本町東急ビル 4階 4C


物件概要
日本橋本町東急ビルのテナント募集中区画
現在、空室がございません。
アクセス
日本橋本町東急ビルの物件情報
日本橋本町東急ビル(中央区日本橋本町)は三越前駅(A5番出口)から徒歩3分の賃貸オフィスです。
日本橋本町東急ビルは三越前駅(A5番出口)の他に新日本橋駅(5番出口)徒歩4分、小伝馬町駅(3番出口)徒歩8分で利用も可能です。