4階は現在募集がありません
VORT東京八重洲maxim 4階
物件概要
VORT東京八重洲maximのテナント募集中区画
現在、空室がございません。
VORT東京八重洲maximのアクセス
VORT東京八重洲maximの物件情報
VORT東京八重洲maxim(中央区八重洲)は大手町駅(B10番出口)から徒歩2分の賃貸オフィスです。格子状のフレームとガラスファサードが印象的な当ビル。周囲のオフィス街の中でも一際目を引くスタイリッシュな外観です。複数の主要駅が利用できる利便性の高さも大きな魅力で、アクセス重視の企業にぴったりな立地といえます。
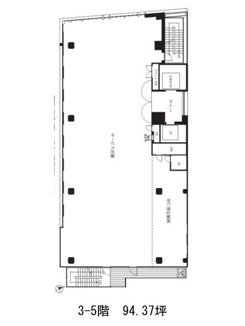
貸室は約94坪の整形空間で、1フロア1テナントの専有型。水回りは室内に集約されており、動線がシンプルで使いやすい設計です。天井高は2,700mmとゆとりがあり、自然光の入る明るい執務環境も魅力のひとつ。
そして何より、ガラス張りの執務空間からは大手町方面のオフィスビル群を一望でき、都会の景色を眺めながら仕事ができる特別感があります。この眺望が日々のモチベーションにつながる、という声もきっと多いはず。
事業拠点としてはもちろん、来客の多い業種や、社内外との打ち合わせが多い企業にもフィットしやすい仕様です。オフィスの見た目や機能性にこだわる方は、ぜひ候補のひとつにご検討ください。VORT東京八重洲maximは大手町駅(B10番出口)の他に日本橋駅(A1番出口)徒歩2分、三越前駅(B3番出口)徒歩3分で利用も可能です。

