新中野FKビル 3階
物件概要
物件番号
686-00002-20物件名
新中野FKビル所在地
- 東京都中野区本町6-16-12
- アクセスマップ
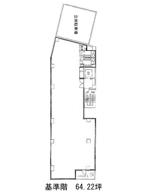
面積
64.22坪賃料(共益費含)
月額918,346円(14,300円/坪)
入居日
即保証金
5,844,020円礼金
なし更新料
新1ケ月償却費
1ケ月竣工
1993年3月構造
S造規模
地上9階/地下1階トイレ
男女別空調
個別空調エレベーター
有セキュリティ
駐車場
有耐震
新耐震基準基準階天井高
2550mm空室延床面積
64.22坪情報更新日
2025/11/19新中野FKビルのテナント募集中区画
| 階数 | 面積 | 賃料(共益費含む) | 保証金 | 入居可能日 | 検討リスト | 詳細 |
|---|---|---|---|---|---|---|
| 3 | 64.22坪 | 918,346円/月(14,300円/坪) | 584万円 | 即 |
…新着物件
新中野FKビルのアクセス
新中野FKビルの物件情報
新中野FKビル(中野区本町)は新中野駅(1番出口)から徒歩2分の賃貸オフィスです。新中野FKビルは新中野駅(1番出口)の他に東高円寺駅(3番出口)徒歩11分、中野富士見町駅(出口)徒歩12分で利用も可能です。

