目黒センタービルのテナント募集中区画
| 階数 | 面積 | 賃料(共益費含む) | 保証金 | 入居可能日 | 検討リスト | 詳細 |
|---|---|---|---|---|---|---|
| 3 | 103.00坪 | 2,945,800円/月(28,600円/坪) | 3,213万円 | 即 |
…新着物件
目黒センタービルのアクセス
目黒センタービルの物件情報
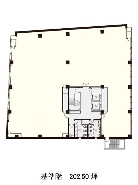
目黒センタービル(品川区上大崎)は目黒駅(正面口)から徒歩3分の賃貸オフィスです。目黒通りに面する角地で視認性抜群、駅至近の好立地なオフィスビルです。周辺には多数のコンビニや飲食店が点在しており食事をする際にも便利です。また、銀行やATM、郵便局も徒歩圏内にあるのでオフィス環境の利便性も高いでしょう。1990年竣工、地上8階・地下1階建、新耐震基準を満たした物件です。室内はコの字型をしており、比較的レイアウトも組みやすそうです。基準階面積は約200坪で床はOAフロア仕様、個別空調、男女別トイレ、エレベーターは2基設置、駐車場も完備されておりハイスペックなオフィスです。目黒センタービルは目黒駅(正面口)の他に白金台駅(1番出口)徒歩11分で利用も可能です。

