ヘリオスビル 10階
物件概要
物件番号
754-00012-100物件名
ヘリオスビル所在地
- 東京都品川区西五反田5-1-3
- アクセスマップ
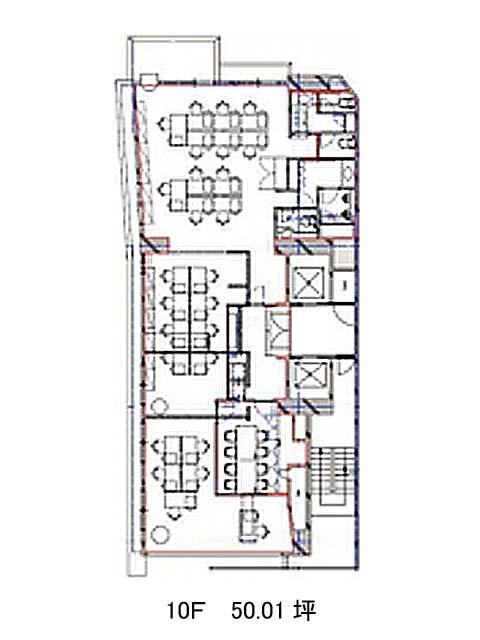
面積
50.01坪賃料(共益費含)
月額1,320,264円(26,400円/坪)
入居日
即保証金
応相談礼金
1ケ月更新料
なし償却費
なし竣工
1989年1月構造
SRC規模
地上10階/地下2階トイレ
男女別空調
個別空調エレベーター
有セキュリティ
有駐車場
有耐震
新耐震基準基準階天井高
2450-2500mm空室延床面積
50.01坪情報更新日
2025/11/19ヘリオスビルのテナント募集中区画
| 階数 | 面積 | 賃料(共益費含む) | 保証金 | 入居可能日 | 検討リスト | 詳細 |
|---|---|---|---|---|---|---|
| 10 | 50.01坪 | 1,320,264円/月(26,400円/坪) | 応相談 | 即 |
…新着物件
アクセス
ヘリオスビルの物件情報
ヘリオスビル(品川区西五反田)は不動前駅(出口)から徒歩3分の賃貸オフィスです。1989年竣工、地上10階・地下2階建ての鉄骨鉄筋コンクリート造です。外観が個性的で前面は異なるデザインが組み合わさったスタイリッシュなオフィスビルです。エントランスは木目調の壁があたたかみのある空間で来訪者にも好印象でしょう。エレベーターは2基設置。山手通りに面しており、駅周辺には銀行や多数の飲食店があり賑やかな印象です。基準階面積は約55坪で長方形のシンプルな形状のためレイアウトの自由度も高そうです。設備面は、個別空調、男女別トイレ、機械式駐車場など。2019年には大規模なリニューアルを実施しています。ヘリオスビルは不動前駅(出口)の他に目黒駅(出口2)徒歩11分、大崎広小路駅(出口)徒歩11分で利用も可能です。

