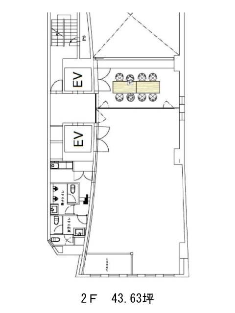
2階は現在募集がありません
ヘリオスビル 2階
物件概要
ヘリオスビルのテナント募集中区画
現在、空室がございません。
ヘリオスビルのアクセス
ヘリオスビルの物件情報
ヘリオスビル(品川区西五反田)は不動前駅(出口)から徒歩3分の賃貸オフィスです。1989年竣工、地上10階・地下2階建ての鉄骨鉄筋コンクリート造です。外観が個性的で前面は異なるデザインが組み合わさったスタイリッシュなオフィスビルです。エントランスは木目調の壁があたたかみのある空間で来訪者にも好印象でしょう。エレベーターは2基設置。山手通りに面しており、駅周辺には銀行や多数の飲食店があり賑やかな印象です。基準階面積は約55坪で長方形のシンプルな形状のためレイアウトの自由度も高そうです。設備面は、個別空調、男女別トイレ、機械式駐車場など。2019年には大規模なリニューアルを実施しています。ヘリオスビルは不動前駅(出口)の他に目黒駅(出口2)徒歩11分、大崎広小路駅(出口)徒歩11分で利用も可能です。

