THE CROSS 五反田のテナント募集中区画
| 階数 | 面積 | 賃料(共益費含む) | 保証金 | 入居可能日 | 検討リスト | 詳細 |
|---|---|---|---|---|---|---|
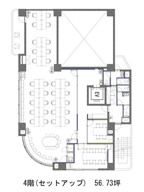
| 2 | 56.73坪 | 1,622,478円/月(28,600円/坪) | 884万円 | 即 |
…新着物件
アクセス
THE CROSS 五反田の物件情報
THE CROSS 五反田(品川区西五反田)は五反田駅(A2番出口)から徒歩5分の賃貸オフィスです。THE CROSS 五反田は五反田駅(A2番出口)の他に大崎広小路駅(出口)徒歩8分、不動前駅(出口)徒歩10分で利用も可能です。

