THE CROSS 五反田 2階
物件概要
物件番号
754-00179-75物件名
THE CROSS 五反田所在地
- 東京都品川区西五反田2-24-4
- アクセスマップ
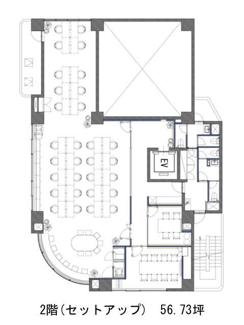
面積
56.73坪賃料(共益費含)
月額1,622,478円(28,600円/坪)
入居日
即保証金
8,849,880円礼金
なし更新料
なし償却費
なし竣工
1993年8月構造
SRC規模
地上10階/地下1階トイレ
男女別空調
個別空調エレベーター
有セキュリティ
有駐車場
無耐震
新耐震基準基準階天井高
空室延床面積
56.73坪情報更新日
2026/02/19THE CROSS 五反田のテナント募集中区画
| 階数 | 面積 | 賃料(共益費含む) | 保証金 | 入居可能日 | 検討リスト | 詳細 |
|---|---|---|---|---|---|---|
| 2 | 56.73坪 | 1,622,478円/月(28,600円/坪) | 884万円 | 即 |
…新着物件
THE CROSS 五反田のアクセス
THE CROSS 五反田の物件情報
THE CROSS 五反田(品川区西五反田)は五反田駅(A2番出口)から徒歩5分の賃貸オフィスです。THE CROSS 五反田は五反田駅(A2番出口)の他に大崎広小路駅(出口)徒歩8分、不動前駅(出口)徒歩10分で利用も可能です。

