3階は現在募集がありません
PMO五反田 3階
物件概要
PMO五反田のテナント募集中区画
現在、空室がございません。
PMO五反田のアクセス
PMO五反田の物件情報
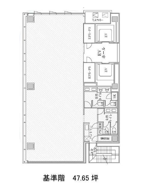
PMO五反田(品川区西五反田)は大崎広小路駅(出口)から徒歩2分の賃貸オフィスです。地上12階建S造CFT構造、2019年竣工の築浅ビルです。ミラーガラス貼りのスタイリッシュな外観をしています。基準階面積は47.65坪。中規模な事務所をお探しの方によいでしょう。間取りは無柱空間の長方形で使い勝手がよいでしょう。共用部はフロアの片側に集中して動線に配慮されています。EV・駐車場・空調・OAフロア・貸室外の男女別トイレといった設備仕様をしています。山手通り沿いに建ち、建物前面の歩道は無電柱化されて幅が広く歩きやすいでしょう。PMO五反田は大崎広小路駅(出口)の他に五反田駅(A2番出口)徒歩5分、大崎駅(西口)徒歩10分で利用も可能です。

