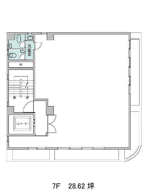
7階は現在募集がありません
セラヴィ五反田 7階
物件概要
セラヴィ五反田のテナント募集中区画
現在、空室がございません。
アクセス
セラヴィ五反田の物件情報
セラヴィ五反田(品川区西五反田)は五反田駅(A2番出口)から徒歩3分の賃貸オフィスです。1974年竣工、地上7階建、鉄筋コンクリート造です。角が丸みを帯びたデザインで、全面ガラス張りの外観が美しい印象です。角地に位置しており、目黒川が近くを流れています。並びにはコンビニ、斜め向かいにはスーパーがあり買い物に便利な立地です。エントランスは大理石がふんだんに使われており、高級感が漂います。エレベーターは1基設置。基準階面積は約50坪です。貸室内は柱のないすっきりとした間取りのため、レイアウトの自由度が高そうです。トイレは男女別でお部屋の端にございます。個別空調完備、機械警備も備わっており安全性が高いです。セラヴィ五反田は五反田駅(A2番出口)の他に大崎広小路駅(出口)徒歩9分、不動前駅(出口)徒歩12分で利用も可能です。

