3階は現在募集がありません
VORT五反田 3階
物件概要
VORT五反田のテナント募集中区画
現在、空室がございません。
アクセス
VORT五反田の物件情報
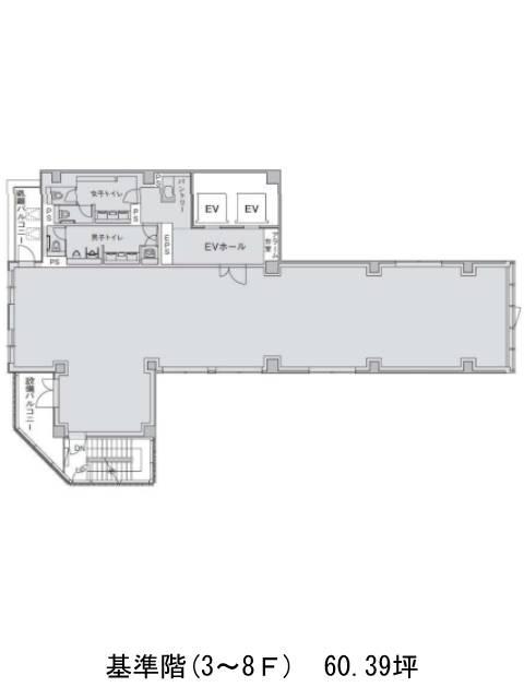
VORT五反田(品川区西五反田)は五反田駅(出口)から徒歩3分の賃貸オフィスです。2023年6月竣工、地上11階建S造の新築ビルです。黒い外壁ですらりと細長く、スタイリッシュな外観をしています。基準階面積は60.39坪。細長い長方形の間取りで、柱が中央に無くレイアウトが容易にできるでしょう。EV2基・非常階段・バルコニー・パントリー・貸室外の男女別トイレ・駐車場・個別空調・OAフロアといった充実の設備仕様をしています。セキュリティとして安心の機械警備が導入されています。足元から天井までの高い窓で、明るく開放感があるでしょう。VORT五反田は五反田駅(出口)の他に大崎広小路駅(出口)徒歩4分、大崎駅(西口)徒歩10分で利用も可能です。

