3階は現在募集がありません
五反田HSビル 3階
物件概要
五反田HSビルのテナント募集中区画
現在、空室がございません。
アクセス
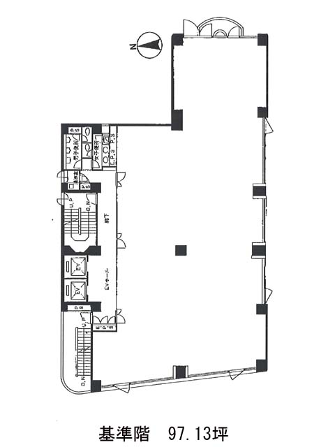
五反田HSビルの物件情報
五反田HSビル(品川区西五反田)は大崎広小路駅(出口)から徒歩7分の賃貸オフィスです。五反田HSビルは大崎広小路駅(出口)の他に五反田駅(A2番出口)徒歩8分、不動前駅(出口)徒歩8分で利用も可能です。

