(仮称)リードシー西五反田ビル 5階
物件概要
物件番号
754-00068-60物件名
(仮称)リードシー西五反田ビル所在地
- 東京都品川区西五反田3-12-14
- アクセスマップ
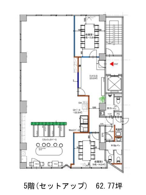
面積
62.77坪賃料(共益費含)
月額1,726,175円(27,500円/坪)
入居日
2026年1月上旬保証金
9,415,500円礼金
なし更新料
新1ケ月償却費
なし竣工
1993年6月構造
SRC規模
地上8階/地下2階トイレ
男女別空調
個別空調エレベーター
有セキュリティ
有駐車場
有耐震
新耐震基準基準階天井高
2600mm空室延床面積
125.54坪情報更新日
2025/11/17(仮称)リードシー西五反田ビルのテナント募集中区画
| 階数 | 面積 | 賃料(共益費含む) | 保証金 | 入居可能日 | 検討リスト | 詳細 |
|---|---|---|---|---|---|---|
| 4 | 62.77坪 | 1,726,175円/月(27,500円/坪) | 941万円 | 2026年1月上旬 | ||
| 5 | 62.77坪 | 1,726,175円/月(27,500円/坪) | 941万円 | 2026年1月上旬 |
…新着物件
アクセス
(仮称)リードシー西五反田ビルの物件情報
(仮称)リードシー西五反田ビル(品川区西五反田)は不動前駅(出口)から徒歩4分の賃貸オフィスです。1993年竣工、地上8階・地下2階建の鉄骨鉄筋コンクリート造、新耐震基準を満たしている物件です。山手通りに面しており視認性も高く、採光良好のオフィスです。前面がガラス張りの美しい外観も印象的です。基準階面積は約62坪、長方形の整形空間で、柱も壁に沿ってあるためレイアウトの自由度が高く、使い勝手が良さそうです。主な設備面は、室内男女別トイレ、給湯設備有、個別空調、OAフロア仕様、セキュリティは機械警備が導入されています。また当ビルにはエレベーターが1基設置されており、不停止機能がついておりますので安全性も高いです。(仮称)リードシー西五反田ビルは不動前駅(出口)の他に目黒駅(出口2)徒歩11分、五反田駅(A2番出口)徒歩12分で利用も可能です。

