6階は現在募集がありません
NTビル 6階
物件概要
NTビルのテナント募集中区画
現在、空室がございません。
NTビルのアクセス
NTビルの物件情報
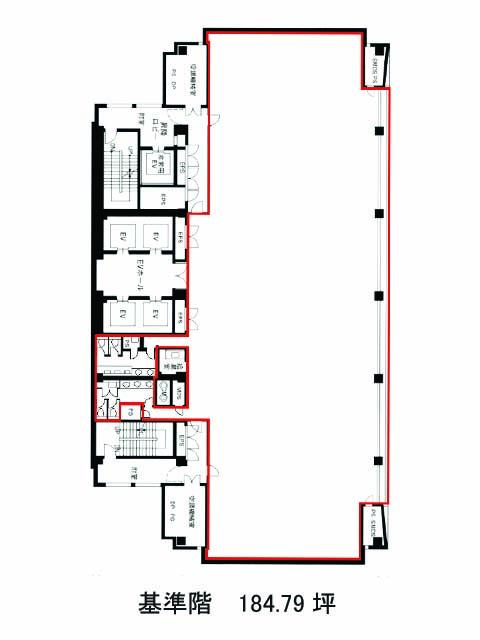
NTビル(品川区大井)は大井町駅(A2番出口)から徒歩4分の賃貸オフィスです。1996年竣工、鉄骨造・一部鉄骨鉄筋コンクリート造の地上17階、地下2階建てです。光学通り沿いの角地に位置しており、グレー調の重厚感あふれる外観が目を惹きます。エントランスはガラス張り仕様で明るく天井が高いので開放感があります。エレベーターホールも広々としており、エレベーターは4基設置されています。貸室内は窓も多く、太陽光がよく入る明るいオフィスです。基準階面積は約180坪で、整形無柱空間のため、ニーズに合わせて様々なレイアウトに対応できるでしょう。主な設備としては、OAフロア、個別空調、男女別トイレ設置、駐車場が完備されています。セキュリティは有人警備で安心して業務ができます。NTビルは大井町駅(A2番出口)の他に下神明駅(出口)徒歩11分、鮫洲駅(出口)徒歩15分で利用も可能です。

