9階は現在募集がありません
1フロア募集区画あり

NTビル 9階

前の写真 次の写真

物件概要

物件番号

758-00054-98

物件名

NTビル

所在地

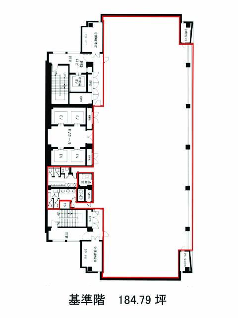
面積

184.79坪

賃料(共益費含)


入居日

募集終了

保証金

礼金

更新料

償却費

竣工

1996年4月

構造

S造

規模

地上17階/地下2階

トイレ

男女別

空調

セントラル+個別空調

エレベーター

セキュリティ

駐車場

耐震

新耐震基準

基準階天井高

2700mm

空室延床面積

82.66坪

最寄駅

情報更新日

2026/04/13

NTビルのテナント募集中区画

階数 面積 賃料(共益費含む) 保証金 入居可能日 検討リスト 詳細
8 82.66坪 応相談(応相談) 応相談 2026年10月上旬
…新着物件

NTビルのアクセス

NTビルの物件情報

NTビル(品川区大井)は大井町駅(A2番出口)から徒歩4分の賃貸オフィスです。
1996年竣工、鉄骨造・一部鉄骨鉄筋コンクリート造の地上17階、地下2階建てです。光学通り沿いの角地に位置しており、グレー調の重厚感あふれる外観が目を惹きます。エントランスはガラス張り仕様で明るく天井が高いので開放感があります。エレベーターホールも広々としており、エレベーターは4基設置されています。貸室内は窓も多く、太陽光がよく入る明るいオフィスです。基準階面積は約180坪で、整形無柱空間のため、ニーズに合わせて様々なレイアウトに対応できるでしょう。主な設備としては、OAフロア、個別空調、男女別トイレ設置、駐車場が完備されています。セキュリティは有人警備で安心して業務ができます。
NTビルは大井町駅(A2番出口)の他に下神明駅(出口)徒歩11分、鮫洲駅(出口)徒歩15分で利用も可能です。

近隣のエリア・駅から探す