7階 7F東は現在募集がありません
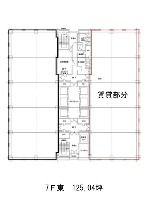
新大崎勧業ビルディング 7階 7F東
物件概要
新大崎勧業ビルディングのテナント募集中区画
現在、空室がございません。
アクセス
新大崎勧業ビルディングの物件情報
新大崎勧業ビルディング(品川区大崎)は大崎駅(東口)から徒歩2分の賃貸オフィスです。1987年竣工、地下2階・地上20階の鉄骨鉄筋コンクリート造、新耐震基準を満たした物件です。駅直結、アクセス良好なロケーションで周辺には高層ビルビルが立ち並ぶオフィス街です。白のタイル張りの外観が清潔感と存在感を兼ね備えています。基準階面積は約250坪でエレベーターホール、水回りなどを境に左右に分けられており、貸室内は明るく、柱は壁に沿ってあるので、レイアウトの自由度が高いでしょう。設備面は、OAフロア、光ファイバー、24時間使用可能、エレベーターは7基設置されています。セキュリティは機械警備と有人警備の併用で安心です。駐車場も完備されおり設備面も申し分のない環境といえるでしょう。新大崎勧業ビルディングは大崎駅(東口)の他に大崎広小路駅(出口)徒歩9分、五反田駅(出口)徒歩11分で利用も可能です。

