18階は現在募集がありません
1フロア募集区画あり

大崎ウィズタワー 18階

前の写真 次の写真

物件概要

物件番号

759-00009-170

物件名

大崎ウィズタワー

所在地

面積

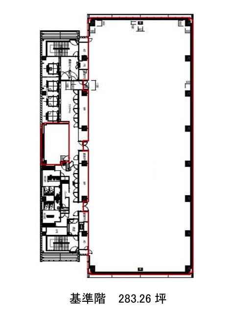
283.26坪

賃料(共益費含)


入居日

募集終了

保証金

礼金

更新料

償却費

竣工

2014年1月

構造

S造

規模

地上24階/地下2階

トイレ

男女別

空調

セントラル

エレベーター

セキュリティ

駐車場

耐震

新耐震基準

基準階天井高

2800mm

空室延床面積

154.71坪

最寄駅

情報更新日

2026/02/03

大崎ウィズタワーのテナント募集中区画

階数 面積 賃料(共益費含む) 保証金 入居可能日 検討リスト 詳細
5 154.71坪 応相談(応相談) 応相談 2026年3月上旬
…新着物件

アクセス

大崎ウィズタワーの物件情報

大崎ウィズタワー(品川区大崎)は大崎駅(新西口)から徒歩4分の賃貸オフィスです。
大崎駅からペデストリアンデッキで直結しておりアクセス良好です。ガラス張りの外観が美しく印象的で視認性も抜群です。2014年竣工、地上24階、地下2階建て、地下は鉄骨鉄筋コンクリート造、地上は鉄骨造の建物です。地下階には駐車場完備、1~3階は飲食店やクリニックが営業しており、4階から上のフロアがオフィスとなっております。当ビルには郵便局も入居しているので、事務仕事にも便利な環境です。基準階面積は約270坪あり、天井高2,800mmの広々とした長方形の無柱空間で、大きな窓からは太陽光が良く入り明るい室内です。セントラル空調、OAフロア、男女別トイレ完備、エレベーターは高層用3基、低層用3基が設置されており昇降もスムーズでしょう。
大崎ウィズタワーは大崎駅(新西口)の他に大崎広小路駅(出口)徒歩13分で利用も可能です。

近隣のエリア・駅から探す