JRE東五反田1丁目ビル 3階
物件概要
物件番号
761-00185-20物件名
JRE東五反田1丁目ビル所在地
- 東京都品川区東五反田1-24-2
- アクセスマップ
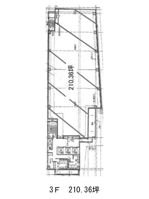
面積
210.36坪賃料(共益費含)
:応相談応相談
入居日
2026年7月上旬保証金
応相談礼金
なし更新料
なし償却費
なし竣工
2004年7月構造
S造規模
地上8階トイレ
男女別空調
個別空調エレベーター
有セキュリティ
駐車場
有耐震
新耐震基準基準階天井高
空室延床面積
813.69坪情報更新日
2026/02/18JRE東五反田1丁目ビルのテナント募集中区画
| 階数 | 面積 | 賃料(共益費含む) | 保証金 | 入居可能日 | 検討リスト | 詳細 |
|---|---|---|---|---|---|---|
| 3 | 210.36坪 | 応相談(応相談) | 応相談 | 2026年7月上旬 | ||
| 4 | 201.11坪 | 応相談(応相談) | 応相談 | 2026年7月上旬 | ||
| 5 | 201.11坪 | 応相談(応相談) | 応相談 | 2026年7月上旬 | ||
| 6 | 201.11坪 | 応相談(応相談) | 応相談 | 2026年7月上旬 |
…新着物件
JRE東五反田1丁目ビルのアクセス
JRE東五反田1丁目ビルの物件情報
JRE東五反田1丁目ビル(品川区東五反田)は五反田駅(A6番出口)から徒歩5分の賃貸オフィスです。JRE東五反田1丁目ビルは五反田駅(A6番出口)の他に大崎広小路駅(出口)徒歩10分、高輪台駅(A1番出口)徒歩10分で利用も可能です。

