8階 Aは現在募集がありません
5フロア募集区画あり
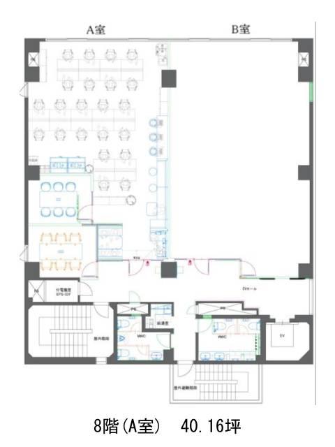
THE GATE GOTANDA EAST 8階 A
物件概要
物件番号
761-00025-77物件名
THE GATE GOTANDA EAST所在地
- 東京都品川区東五反田1-25-11
- アクセスマップ
面積
40.16坪賃料(共益費含)
−入居日
募集終了保証金
−礼金
−更新料
−償却費
−竣工
1986年11月構造
SRC規模
地上8階トイレ
男女別空調
個別空調エレベーター
有セキュリティ
有駐車場
有耐震
新耐震基準基準階天井高
2650mm空室延床面積
361.44坪情報更新日
2026/02/19THE GATE GOTANDA EASTのテナント募集中区画
…新着物件
THE GATE GOTANDA EASTのアクセス
THE GATE GOTANDA EASTの物件情報
THE GATE GOTANDA EAST(品川区東五反田)は五反田駅(A5番出口)から徒歩7分の賃貸オフィスです。THE GATE GOTANDA EASTは五反田駅(A5番出口)の他に大崎駅(東口)徒歩10分、大崎広小路駅(出口)徒歩11分で利用も可能です。

