6階は現在募集がありません
白雉子ビル 6階
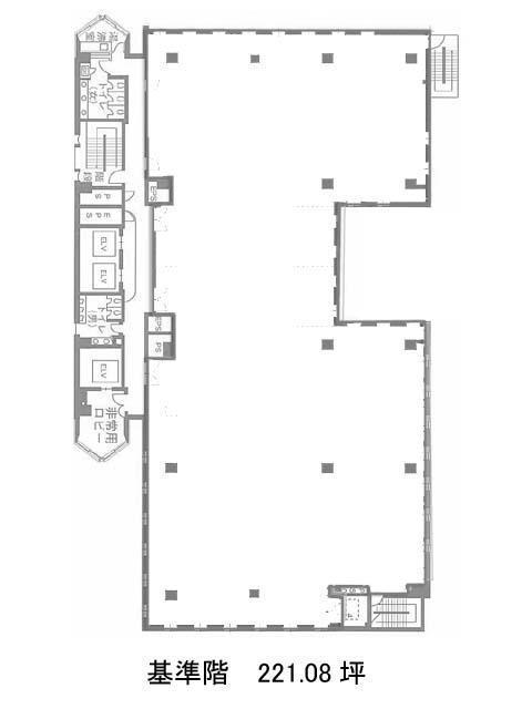
物件概要
白雉子ビルのテナント募集中区画
現在、空室がございません。
白雉子ビルのアクセス
白雉子ビルの物件情報
白雉子ビル(品川区東五反田)は五反田駅(A6番出口)から徒歩4分の賃貸オフィスです。白雉子ビルは五反田駅(A6番出口)の他に高輪台駅(A1番出口)徒歩7分、大崎広小路駅(出口)徒歩12分で利用も可能です。

