12階は現在募集がありません
5フロア募集区画あり

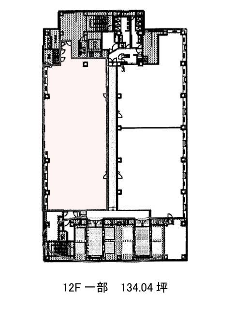
東京フロントテラス 12階

前の写真 次の写真

物件概要

物件番号

765-00026-70

物件名

東京フロントテラス

所在地

面積

134.04坪

賃料(共益費含)


入居日

募集終了

保証金

礼金

更新料

償却費

竣工

1992年6月

構造

SRC

規模

地上22階/地下1階

トイレ

男女別

空調

セントラル

エレベーター

セキュリティ

駐車場

耐震

新耐震基準

基準階天井高

2630mm

空室延床面積

711.25坪

最寄駅

情報更新日

2026/04/27

東京フロントテラスのテナント募集中区画

階数 面積 賃料(共益費含む) 保証金 入居可能日 検討リスト 詳細
8 76.96坪 応相談(応相談) 応相談 2026年7月中旬
10 130.91坪 応相談(応相談) 応相談 相談
11 289.24坪 応相談(応相談) 応相談 2027年4月上旬
12 82.21坪 応相談(応相談) 応相談 2026年10月上旬
15 131.93坪 応相談(応相談) 応相談 2026年7月上旬
…新着物件

東京フロントテラスのアクセス

東京フロントテラスの物件情報

東京フロントテラス(品川区東品川)は天王洲アイル駅(中央口)から徒歩2分の賃貸オフィスです。
1992年竣工、地上22階地下1階建のビルです。大きなガラス窓が並び、すっきりとした外観をしています。エントランスまわりは明るい茶色の天然石を使用し、高級感のある内装です。貸室面積は60坪台から140坪台などバリエーション豊富にございます。設備仕様として、EV・駐車場・セントラル空調・OAフロア・貸室外の男女別トイレがあります。セキュリティとして安心の機械警備が導入されています。運河に近く、高層階からは爽やかな眺望をお楽しみ頂けるでしょう。

近隣のエリア・駅から探す