東京フロントテラス 8階 DE
物件概要
東京フロントテラスのテナント募集中区画
| 階数 | 面積 | 賃料(共益費含む) | 保証金 | 入居可能日 | 検討リスト | 詳細 |
|---|---|---|---|---|---|---|
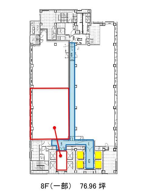
| 8 | 76.96坪 | 応相談(応相談) | 応相談 | 2026年7月中旬 | ||
| 10 | 130.91坪 | 応相談(応相談) | 応相談 | 相談 | ||
| 15 | 131.93坪 | 応相談(応相談) | 応相談 | 2026年7月上旬 |
…新着物件
東京フロントテラスのアクセス
東京フロントテラスの物件情報
東京フロントテラス(品川区東品川)は天王洲アイル駅(中央口)から徒歩2分の賃貸オフィスです。1992年竣工、地上22階地下1階建のビルです。大きなガラス窓が並び、すっきりとした外観をしています。エントランスまわりは明るい茶色の天然石を使用し、高級感のある内装です。貸室面積は60坪台から140坪台などバリエーション豊富にございます。設備仕様として、EV・駐車場・セントラル空調・OAフロア・貸室外の男女別トイレがあります。セキュリティとして安心の機械警備が導入されています。運河に近く、高層階からは爽やかな眺望をお楽しみ頂けるでしょう。

