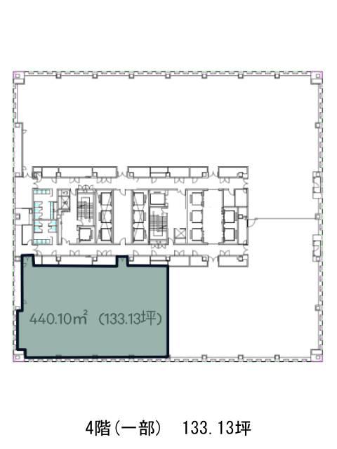
品川シーサイドサウスタワーのテナント募集中区画
…新着物件
品川シーサイドサウスタワーのアクセス
品川シーサイドサウスタワーの物件情報
品川シーサイドサウスタワー(品川区東品川)は品川シーサイド駅(B番出口)から徒歩4分の賃貸オフィスです。2004年竣工、地上18階地下1階建S造のビルです。縦長の窓ガラスが並びすっきりとした外観をしています。基準階面積は596.44坪。大型の企業にも対応可能です。貸室は共用部を囲むようにコの字型に配置されています。設備仕様として、EV(乗用11基・人荷用2基)・駐車場(機械式116台・平面式34台)・個別空調・OAフロア・貸室外の男女別トイレがあります。EVは高層用と低層用に分かれており使い勝手が良いでしょう。品川シーサイドサウスタワーは品川シーサイド駅(B番出口)の他に青物横丁駅(出口1)徒歩11分、鮫洲駅(出口)徒歩13分で利用も可能です。

