2階は現在募集がありません
1フロア募集区画あり

T4号棟 2階

前の写真 次の写真

物件概要

物件番号

765-00004-10

物件名

T4号棟

所在地

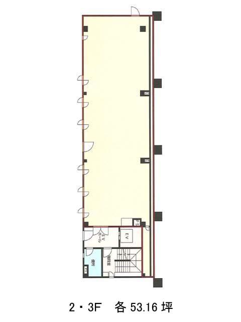
面積

53.16坪

賃料(共益費含)


入居日

募集終了

保証金

礼金

更新料

償却費

竣工

1987年2月

構造

SRC

規模

地上6階

トイレ

男女別

空調

エレベーター

セキュリティ

駐車場

耐震

新耐震基準

基準階天井高

2360mm

空室延床面積

53.16坪

最寄駅

情報更新日

2025/12/11

T4号棟のテナント募集中区画

階数 面積 賃料(共益費含む) 保証金 入居可能日 検討リスト 詳細
4 53.16坪 935,616円/月(17,600円/坪) 478万円 2026年5月
…新着物件

T4号棟のアクセス

T4号棟の物件情報

T4号棟(品川区東品川)は天王洲アイル駅(中央口)から徒歩3分の賃貸オフィスです。

近隣のエリア・駅から探す